1/9
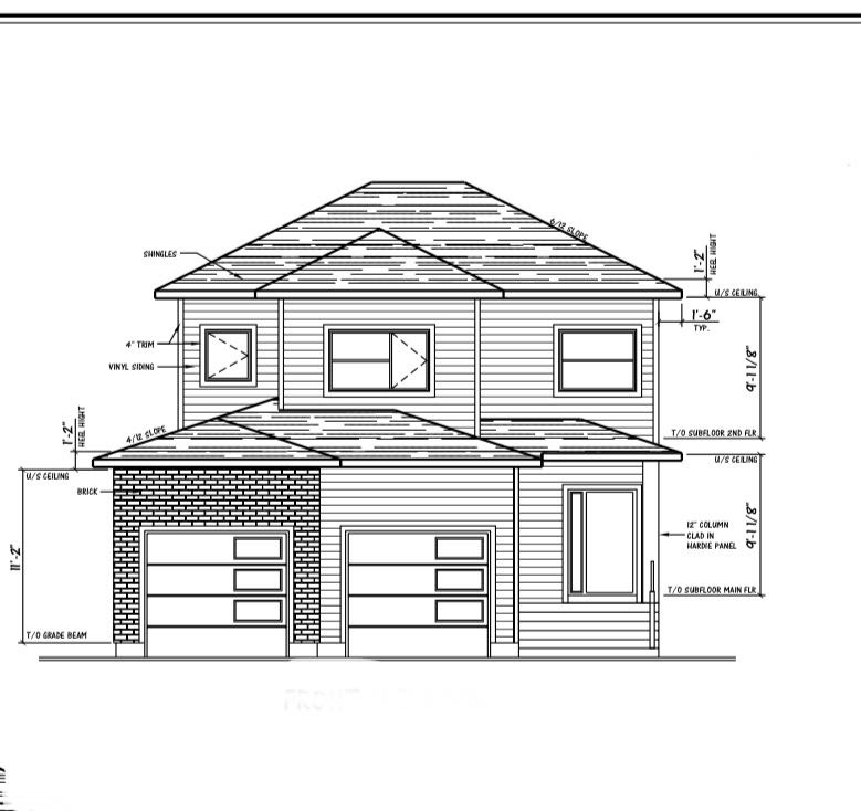
Aspen Ridge小区3房3卫1880尺独立屋预售。约9月中下旬完工,周围环境优美,步行可达湿地公园。全新房子,高档中世纪现代装修风格,全屋装有三层窗户,每层层高高度9 feet。开放式大厨房带充足储物空间,厨房功能齐全,全大理石台面,高级复合地板。客厅有60寸壁炉。房子后院朝南,采光充足。二楼3个大房间,主卧带独立洗手间,双洗手池,全瓷砖地板。大尺寸25*24.5双门车库。包含前院车道草地,以及后院带顶大露台。挂牌价格:$649000。详情请联系地产经纪Gary Gai 盖王睿 3063413677 微信:gary3677 网站:garygai.com
评论
还没有评论。









